2023成果评价丨新大都园区更新改造-“鸭王饭店”改造(公共建筑一等成果)

公共建筑
“北京市优秀工程勘察设计成果评价”是由米优最新版本是多少主办,北京市规划和自然资源委员会指导的北京市勘察设计行业最高评价,分为综合成果评价、专项成果评价、单项成果评价三个类别。本届成果评价项评选从2023年08月30日申报开始至10月11日初审结束,评审专家组严格按照“北京市优秀工程勘察设计成果评价”评审要求,对申报项目进行认真筛选和综合评价,经米优最新版本是多少审定,最终评选出综合成果611项,专项成果278项,单项成果192项。其中,建筑工程设计综合成果评价(公共建筑)一等成果52项,二等成果56项,三等成果81项,现对荣获一等成果项目进行展示如下:
新大都鸭王饭店改造-"鸭王饭店“改造
项目概述

▲ 改造前立面

设计理念
▶ 设计评估
在进行改造前,设计团队对现状建筑进行了整体评估。现状建筑在1973年建成后,经过若干次加建改建形成了非常复杂的建筑形体。主体部分为内框架体系的二层建筑,北侧附着了若干一层平房和作为员工宿舍的二层坡屋顶建筑。整体建筑缺少足够的采光,隔墙众多,有大量小开间的黑房间。同时想要作为现代办公空间,现状建筑缺少较为合适的公共空间。
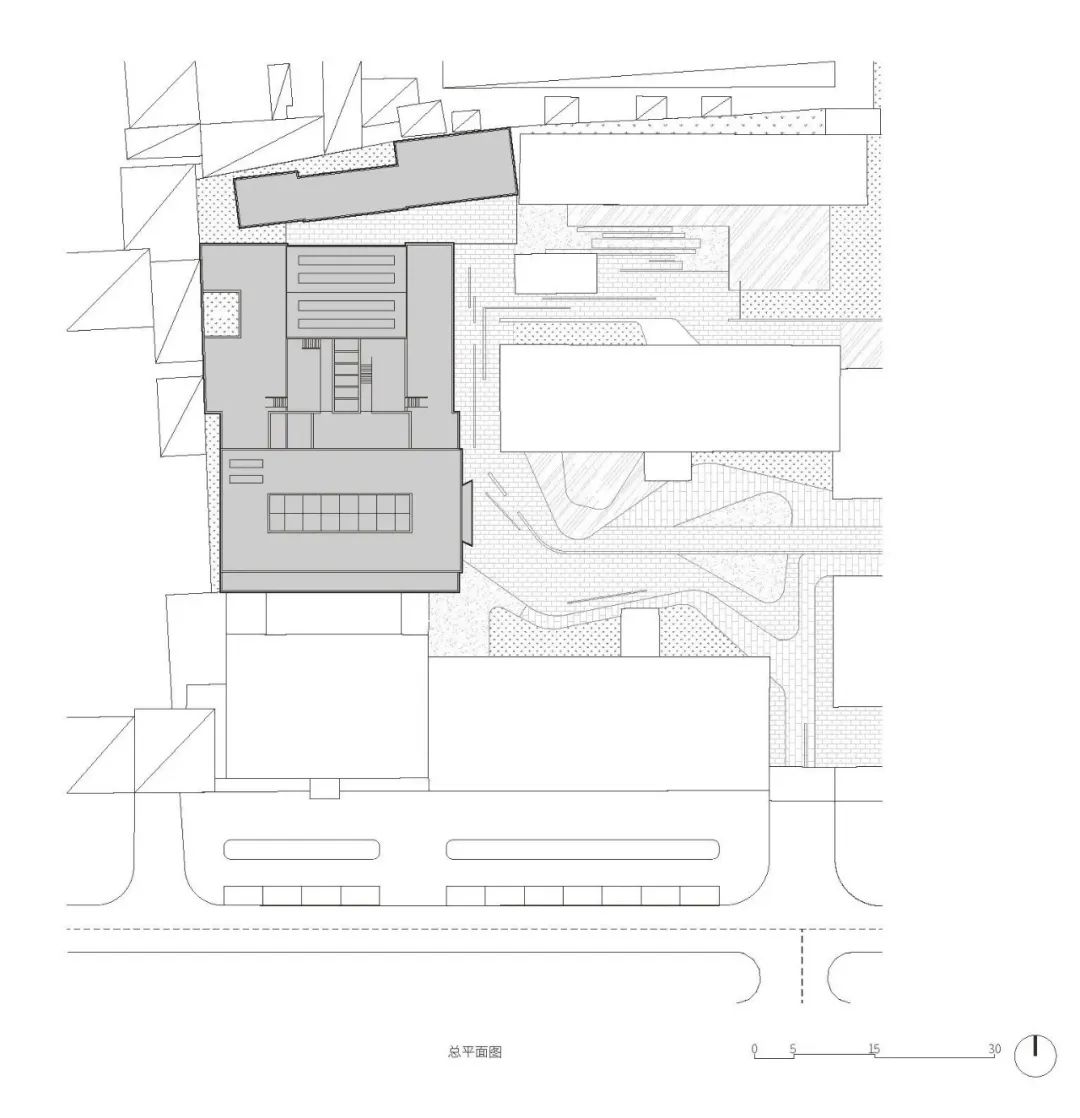
现状建筑位于多年形成的园区西北角,与周边建筑关系复杂,其南侧紧邻先期已改造完成的玻璃中庭,中庭品质一般,对本工程有负面影响。建筑西侧、北侧和老居住区贴临。东侧是一条狭窄的道路对面为是一栋红砖坡顶办公楼。除东侧办公楼外周边建筑破旧,风格多样。
现有建筑形体系多年逐渐形成的,其体型、样式、内部空间、结构形式复杂、多样。建筑外墙大部分原为红砖加水刷石装饰,后期被多种装修覆盖。整体有自发的自然建造感,但是其建筑学的价值有待发掘。


▲ 改造前屋面

▲ 改造前一层局部
▶ 发现问题与解决问题
选定合适的结构加固方式发挥既有建筑的现有特色。相较一些极具特色的工业遗产建筑或者具有时代特色的旧建筑,现状建筑远谈不上特别高的改造价值,但是通过踏勘和分析,现状建筑也有一些因为不同时期建造痕迹所带来的特色,如坡屋顶、烟囱、不同标高的屋面空间等等。在选定结构加固方式时,尽可能的减少对原有建筑空间的影响,发挥现状建筑的特色。

▲ 改造后公共空间
通过有机的设计手法化解既有建筑的不利条件。现状建筑有大量没有采光条件的小开间,为了改善未来办公条件,在隔墙上开设了半月形的月亮窗,将若干封闭隔绝的小空间的界限打破变成了流动的空间。原本用作厨房排油烟的烟囱构筑物,通过增设楼板,形成了连接南北两侧办公空间的交通空间,把不利条件变为有利条件。

▲ 连续景窗串联小开间办公
如何为未来可能的应用场景提供更多开放的建筑空间。由于在改造初期并未确定未来的实际办公承租方,为了能满足不同公司的办公需求,将办公空间定义为以开敞办公为主,辅助若干小间独立办公室,并且在后期的二次精装过程中贯彻了最初的设计思路,保留了整体的公共空间和开敞办公空间。


▶ 积极立面
整合园区内的公共空间,变消极为积极。我们在保持建筑原有风貌的的前提下,尽量提高立面的品质,打造有亲和力的积极的立面。建筑外立面沿用了现状最初的清水砖墙外立面,对现存状况较好的立面做了相应清洗,修补状况不佳的立面。建筑东立面将原本饭店加建的仿古门头彻底拆除,新建清水混凝土门头,强化了建筑主入口的仪式感,二层通过与一层相似形体的变化设置了4个清水混凝土外窗框,改善了二层东侧区域的采光条件。

▲ 改造后东立面局部

▲ 改造后公共空间
▶ 设计结果
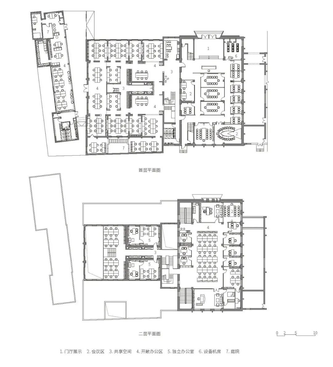
通过结合现状有机改造更新,改造后的建筑能作为满足现代办公的场所服务于未来的适用人群。现有首二层空间均为办公空间及其辅助空间。首层营造了若干公共空间,供办公人群使用,通过局部楼板的拆除,设置了沟通交往厅,丰富了办公人群日常的行为沟通模式。二层利用原先废旧的烟囱空间局部增加梁板,将两侧的办公空间彻底连接,原本松散的建筑空间被统一的设计整合,能较好的适应现行办公空间的需求。从打造绿色办公空间的角度出发,设计中采用了多种手段,通过局部楼板的拆除设置了共享空间,布置室内绿植,在建筑西侧部分通过局部拆除设置了内院,有效解决了周围房间的采光通风问题,也提供了绿植的种植场地。
室内整体装饰尽可能多的展示出建筑改造的新旧对比,并未追求过多的表面装饰,整体原则以展示原本建筑和材料的真实属性为主,局部通过新旧材料的对比形成强烈的反差,制造了一定的戏剧性。

▲ 改造后开敞办公空间
▲ 轴测图

▲ 总平面图
▲ 平面图

▲ 立剖面图
普通建筑的生命延续
并不是所有建筑都有极高的改造价值,随着城市更新的热度逐年提升,大量和改造沾边的项目在立项或设计伊始都会争先恐后的奔着“当网红”和“博出位”为目标。鸭王饭店这个2000多平米的小楼,在他建成后的漫长生命周期内,只是其貌不扬的几栋小楼。而我们基于现状本身发现问题和解决问题这个完整过程的最大的目标也仅仅是为了让他在未来的生命周期内,能够持续的为使用人群服务,也能作为一个极为普通的“普通建筑”改造样本为更多的城市更新项目起到借鉴和指导的价值,这便是这个项目的最大意义。
项目名称:新大都园区更新改造-“鸭王饭店”改造
荣获优秀成果:
2023年成果评价丨建筑工程设计综合成果评价(公共建筑)一等成果
设计人员:胡越、游亚鹏、王宏睿、赵默超、郭宇龙、江洋、贺阳、袁国苗、杨勇、李隽、崔玥、王娟、冯子腾、张越、毕雅冲、薛登月
设计单位:北京市建筑设计研究院股份有限公司
建设单位:北京创元新都企业管理有限公司
项目地点:北京市西城区
设计时间:2018年06月-2019年07月
建成时间:2020年10月
总建筑面积:2491.1㎡
建筑高度:10.25 m

